Das Bewerbungsverfahren ist abgeschlossen.
Größe
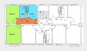
2 Zimmer, Duschbad, kein Balkon
52,48 m²

Lage
Hübnerstraße 3, 4. OG rechts
10247 Berlin-Friedrichshain
Gebäude
50er-Jahre-Mauerwerksbau (Baujahr 1956-57)
Weitere Informationen zum Haus (einschließlich dem Energieausweis) finden Sie hier.
Miete
Nettokaltmiete: 362,11 €
Warmmiete: 498,56 €
Genossenschaftsanteile: 2045,16 €
zu vermieten ab 01.07.2020
Bemerkungen
Vor dem Neubezug erhält die Wohnung einen neuen Fußbodenbelag.
Angestrebt wird, dass die Schönheitsreparaturen von den neuen Nutzer*innen durchgeführt werden. Hierzu werden Materialkostenzuschuss und/oder Mietfreiheit nach Abstimmung gewährt.