Vorerst werden keine weiteren Besichtigungstermine vergeben.
2 Zimmer, Hübnerstraße 6, 1. OG rechts

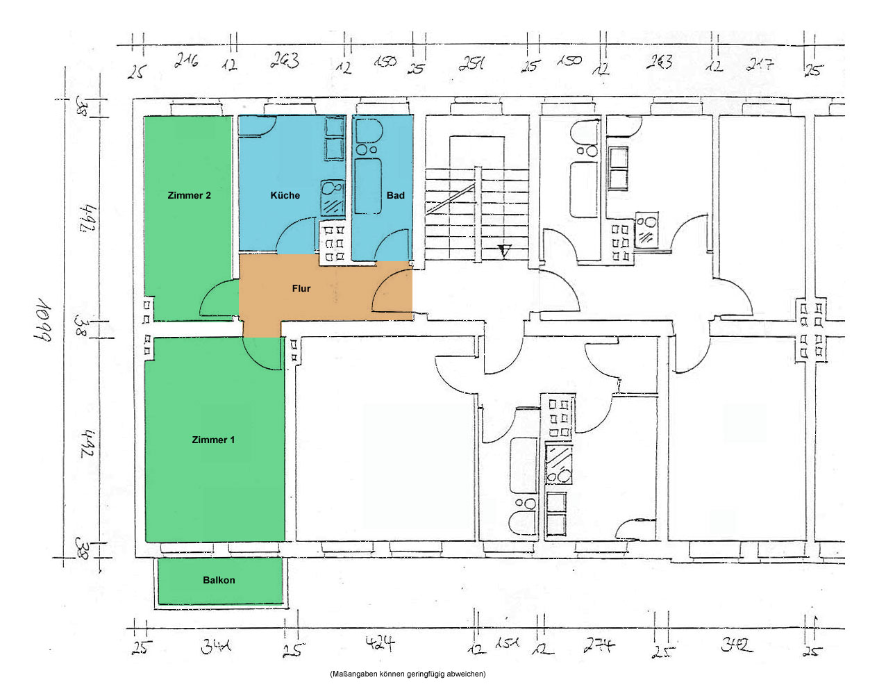
Beschreibung
- Gut geschnittene und günstige 2-Zimmer-Wohnung
- Küche als eigener Raum mit Speisekammer und mit Platz für kleinen Esstisch
- Tageslicht-Bad mit Badewanne
- Balkon, begrünter Hof zur Mitnutzung
- Keller-Abteil
zu vermieten ab 01.02.2026
Größe
2 Zimmer, 43,58 m²
Lage
Hübnerstraße 6, 1. OG rechts
10247 Berlin-Friedrichshain
Gebäude
50er-Jahre-Mauerwerksbau (Baujahr 1956-58)
Zentralheizung (Fernwärme)
Energieausweis des Hauses.
Weitere Informationen zum Haus finden Sie hier.
Nutzungsgebühr (Miete) und Anteile
| Nettokaltmiete: | 311,16 € |
| Nebenkosten-Vorauszahlung: | 172,14 € |
| Warmmiete: | 438,30 € |
| Genossenschaftsanteile: | 1.533,87 € |